| |
|
 |
| |
|
|
|
|
|
|
|
|
|
|
| |
|
|
|
|
|
|
|
|
|
|
|
| |
|
|
|
|
|
|
|
|
|
|
| |
| |
h 此類型專用截止閥主要用于低溫和深冷介質(包括LNG)的高壓管路系統,具有開關靈活、密封可靠、防火和靜電等特點。 |
|
|
|
| |
|
|
|
|
|
|
|
| |
|
|
|
|
| |
| |
●類型:球形
●連接形式:法蘭
●公稱壓力:5.0MPa
●公稱通徑:15mm; 20mm; 25mm; 40mm; 50mm; 65mm; 80mm; 100mm
●最低工作溫度:-50℃
●驅動方式:手動 |
|
|
| |
|
|
|
|
| |
|
|
|
|
|
|
| |
|
|
|
|
| |
| |
●閥體:0Cr18Ni9(相當于ANSI\ASTM A351 CF8)
●閥蓋:0Cr18Ni9(相當于ANSI\ASTM A351 CF8)
●閥瓣:0Cr18Ni9(相當于ANSI S304)
●閥桿:2Cr13 (相當于ANSI\ASTM A433 S420)
●密封圈:純聚四氟乙烯、增強純聚四氟乙烯或聚三氟氯乙烯
●填料:純聚四氟乙烯 |
|
|
| |
|
|
|
|
| |
|
|
|
|
|
|
| |
|
|
|
|
| |
| |
●梯形螺紋運動副
●閥座由閥體直接加工而成
●閥桿與填料座以及填料套之間的間隙應保證閥桿在-50℃溫度下靈活運動
●密封副為金屬對金屬(允許制造形式為金屬對金屬,金屬閥瓣可以制造成線形或等百分比流量閥瓣形式) |
|
|
| |
|
|
|
|
|
|
|
|
|
|
|
|
|
|
|
|
|
|
| |
|
|
|
|
|
|
|
|
|
|
| |
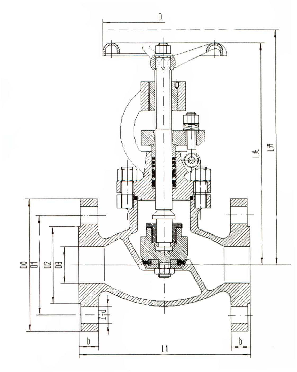
產品代號 |
尺 寸(mm) |
備注 |
L開 |
L關 |
L1 |
D |
D0 |
D1 |
D2 |
D3 |
b |
Z--d |
352A20 |
265 |
252 |
152 |
Ф120 |
Ф120 |
Ф82.5 |
Ф43 |
Ф21 |
16 |
4--Ф16 |
|
352A25 |
265 |
252 |
190 |
Ф120 |
Ф125 |
Ф89 |
Ф51 |
Ф27 |
19 |
4--Ф18 |
|
352A40 |
320 |
302 |
241 |
Ф200 |
Ф155 |
Ф114.5 |
Ф73 |
Ф41 |
21 |
4--Ф22 |
* |
352A50 |
320 |
302 |
283 |
Ф200 |
Ф165 |
Ф127 |
Ф92 |
Ф50 |
23 |
8--Ф18 |
|
352A65 |
355 |
336 |
330 |
Ф240 |
Ф190 |
Ф149 |
Ф105 |
Ф66 |
23.5 |
8--Ф22 |
* |
352A80 |
387 |
363 |
387 |
Ф280 |
Ф210 |
Ф168.5 |
Ф127 |
Ф80 |
29 |
8--Ф22 |
* |
352A100 |
395 |
367 |
457 |
Ф280 |
Ф255 |
Ф200 |
Ф157.5 |
Ф101.5 |
32 |
8--Ф22 |
* |
|